Große Halle
Wenn Sie eine etwas grössere Feier planen mit ca. 400 bis zu 1000 Gästen, dann bietet sich die komplette Hirschberger Schützenhalle an.
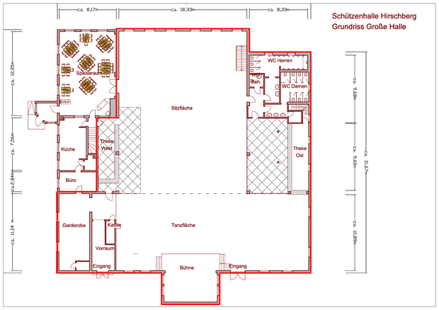
Auf dem Bestuhlungsplan können Sie sehen, daß unsere Schützenhalle bis zu 470 Sitzplätze bietet.
Zur Bewirtung Ihrer Gäste stehen Ihnen zwei grosse Theken mit sechs vollwertigen Zapfstellen zu Verfügung.
Im vorderen Bereich befindet sich auch eine etwas erhöhte Bühne die Sie ebenfalls je nach Bedarf nutzen können.
Wenn Sie sich entschlossen haben Ihre Feier in der Hirschberger Schützenhalle abzuhalten, dann setzten Sie sich bitte mit unserem Hallenwart in Verbindung.
Um näheres über die Mietpreise zu erfahren können Sie unsere Preisliste zu Rate ziehen.

